Antoniana Case due S.r.l. - Proposte

Mestre

App. 3 camere

€229.000

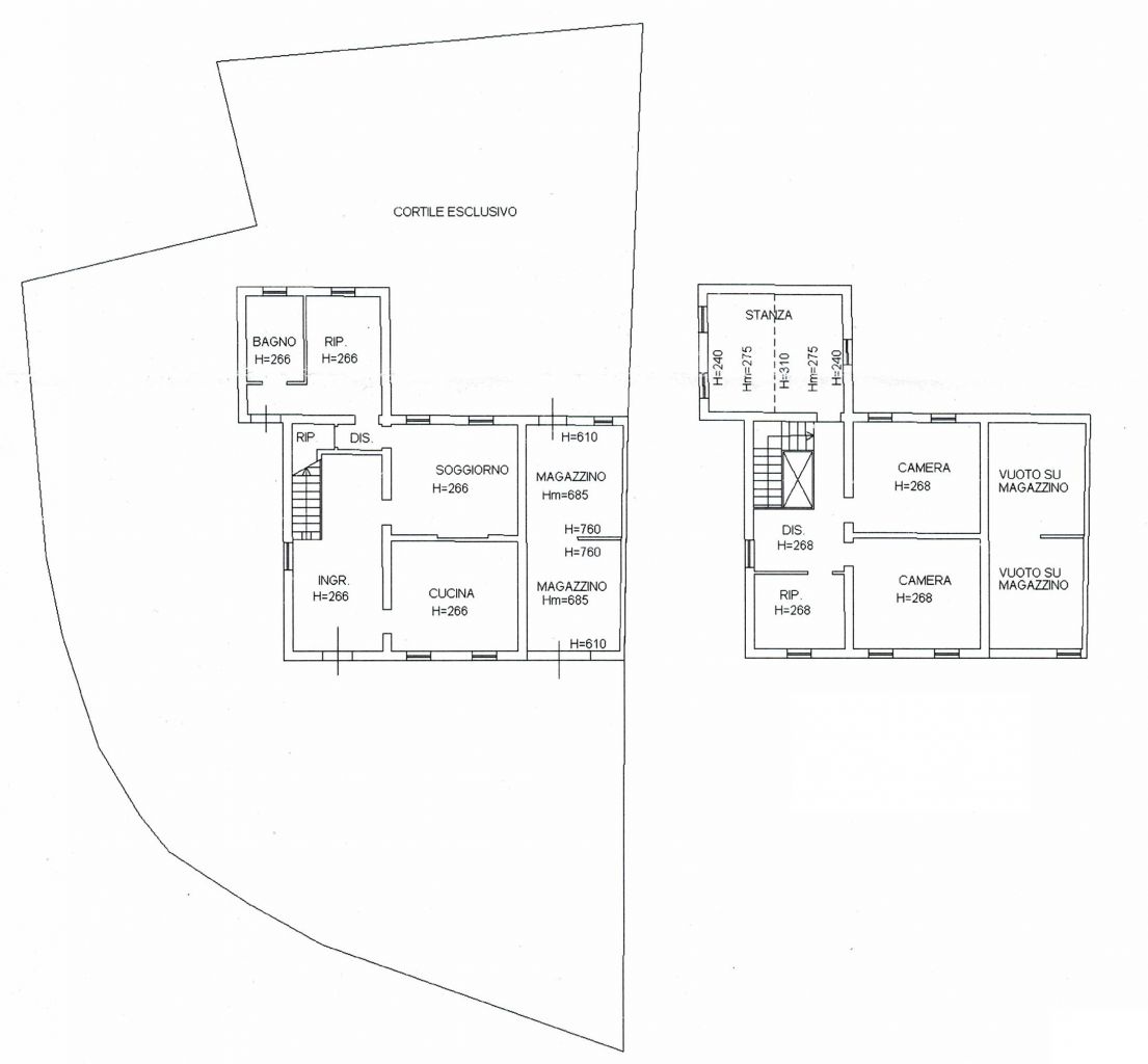
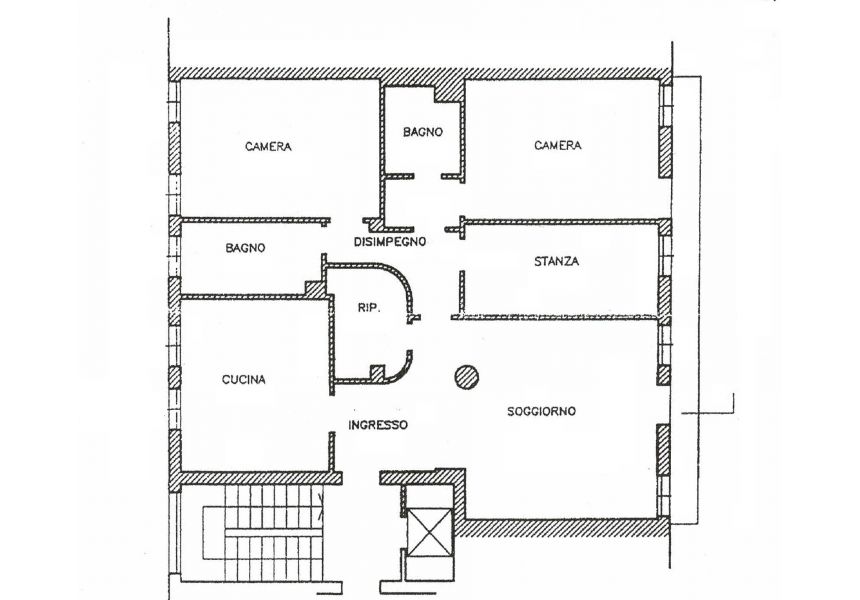
MESTRE INIZIO VIA CAPPUCCINA, RESTAURATO, LIBERO SUBITO, ASCENSORATO, AMPIA METRATURA, ingresso, soggiorno, cucina, 3 camere, 2 bagni, ripostiglio, terrazzo, € 229.000,00, possibilita' garage, Cl. En. “F” - IPE 248,00 kwh/mq anno, rif. 10/S. Tel. 041/959200.

Riferimento: 10/S

Richiesta informazioni su questo immobile

Chiedo informazioni

INFORMATIVA PRIVACY:
Compilando ed inviando questo modulo si autorizza la Antoniana Case due srl a trattare i dati immessi nel proprio elenco clienti per finalità di marketing tramite l'invio di materiale informativo, pubblicitario o promozionale. I dati sono conservati e trattati secondo le disposizioni del regolamento UE 2016/679 e in ogni momento si potrà avere accesso ai propri dati, chiederne la modifica o la cancellazione, oppure opporsi al loro utilizzo scrivendoci.


Accetto
Non accetto

Accettando si dichiara di aver preso visione dell'informativa completa

HAI BISOGNO DI AIUTI O CONSIGLI? CONTATTACI!!! CONTATTACI